56 Park Ave, Glen Rock, NJ 07452
Toggle Navigation
Files
Images
Videos
Floor Plans
Map
Previous Photo
Next Photo
Files
56_Park_Aveue_Glen_Rock.pdf
(416.35 KB)
Images
Slideshow
Photo Grid
Hide
Previous
Next
Show more
Videos
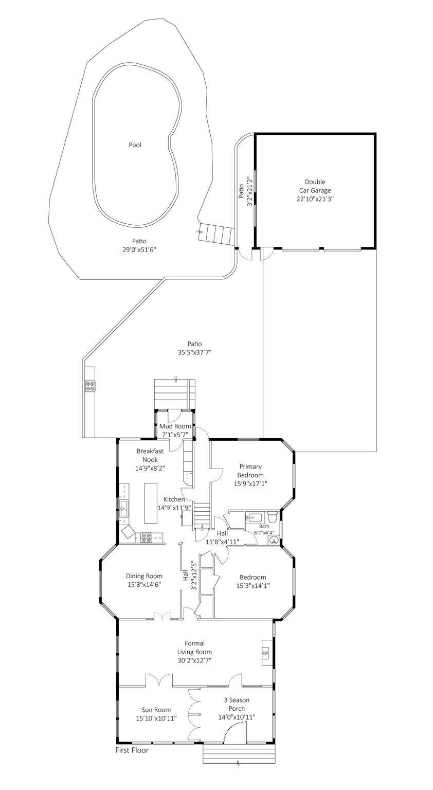
Floor Plans
Slideshow
Photo Grid
Hide
Previous
Next